Atelier Regular


Communication pour l’architecture, l’art & la culture
À propos | Instagram ︎ | Linkedin ︎


Atelier Regular cesse ses activités à l’automne 2025.
Les archives des projets réalisés sont publiées ici.
Alexandra, co-fondatrice & gérante → alexandra@a-regular.com
Camille, associée & architecte → camille@a-regular.com

DETAIL Practice
Editions DETAIL - Allemagne
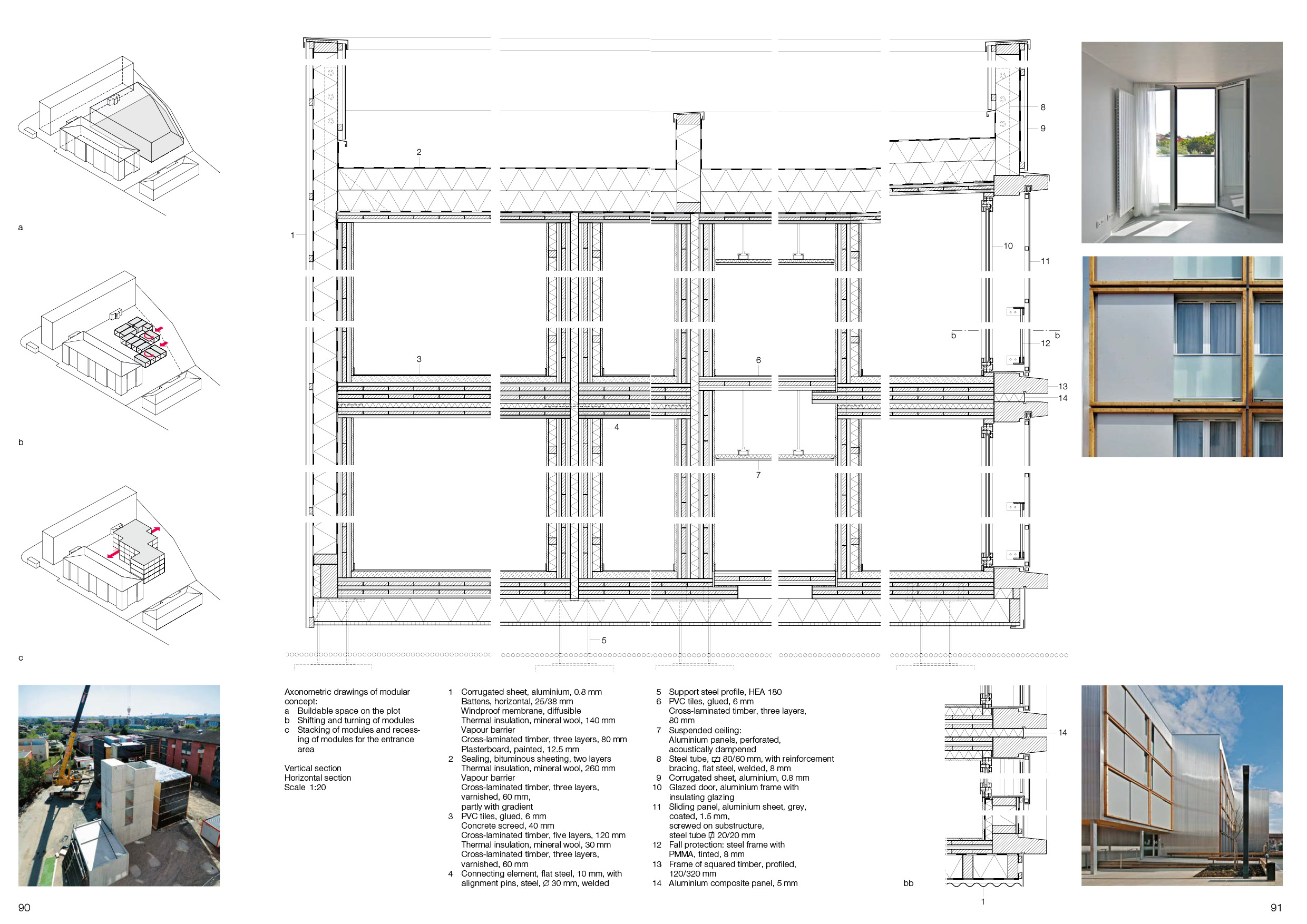
Building in Timber / Room Modules
©Huß Wolfgang, Kaufmann Matthias, Merz Konrad
Pour ppa architectures
+ Emma Blanc
+ Pyrénées Charpentes


︎  Télécharger le pdf
︎ Acheter l’ouvrage sur DETAIL Online













Atelier Regular . Bayonne . Ondres . Toulouse