︎

AKA regular


Communication Conseil Développement

︎︎︎ Stratégie ︎︎︎ Identité ︎︎︎ Documents ︎︎︎ Digital ︎︎︎ Dossiers de presse ︎︎︎ Relations presse, prix ︎︎︎ Édition ︎︎︎ Événements & scénographie

︎ | infos | ︎

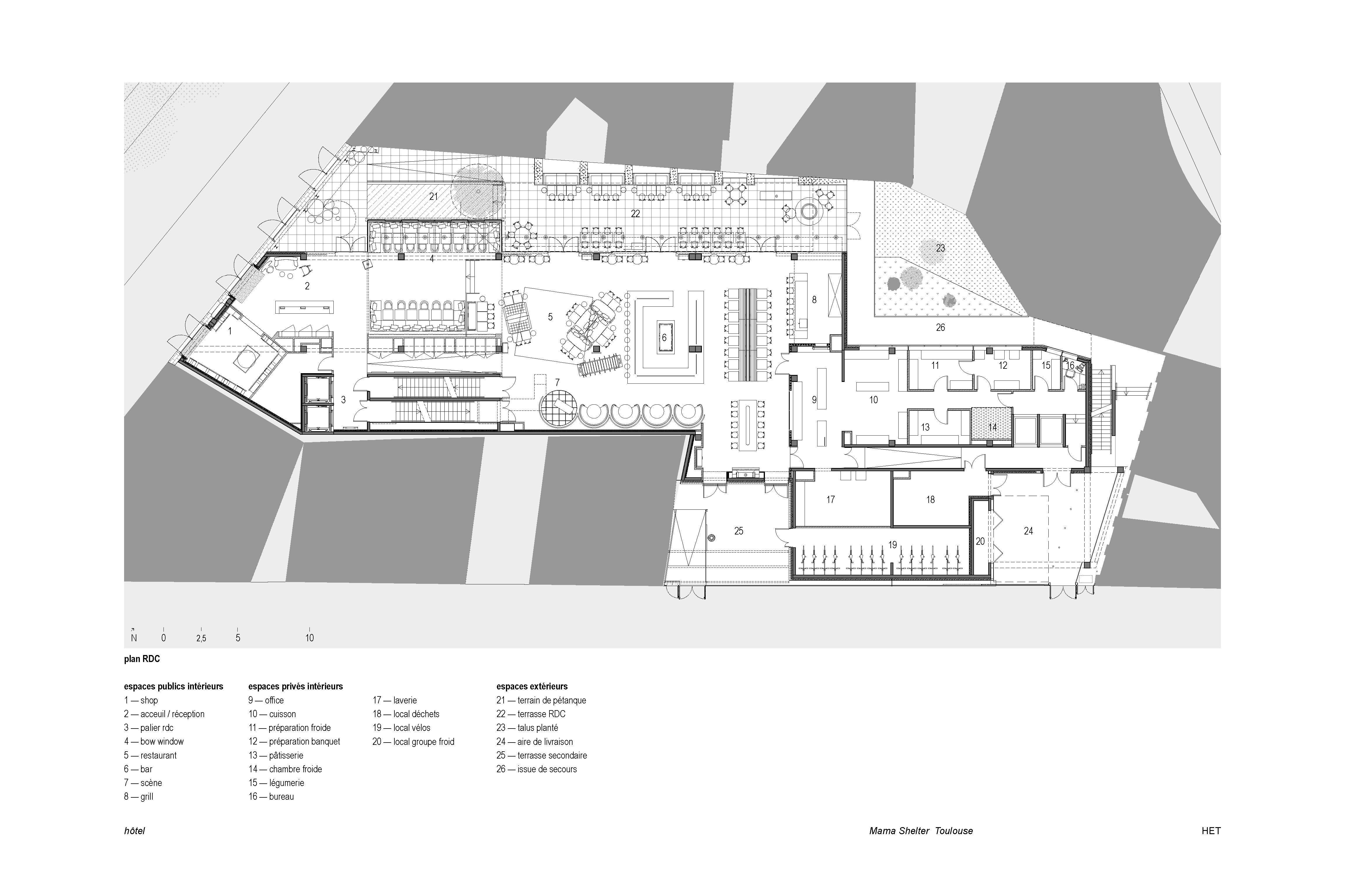
Mama Shelter Toulouse 
Pour ppa architectures

︎ Télécharger le pdf
︎ Demander le dossier de presse


Publications
Architizer
Archello













© AKA regular - Mentions Légales

︎ | infos | ︎